$869,999
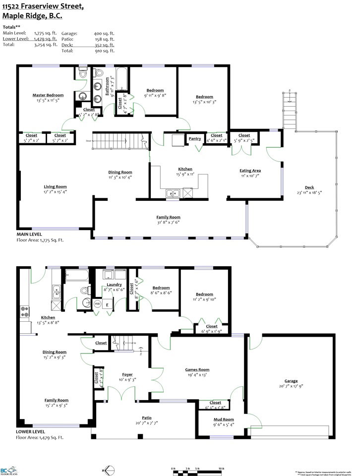
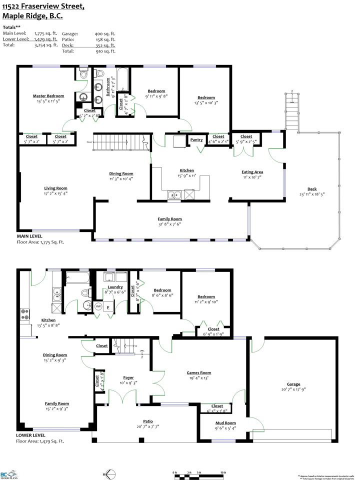
11522 Fraserview Street
Sold
Features & amenities
- Private Yard
- Fireplace 1
Additional details
- MLS® # R2402059
- Type House
- Subtype House/Single Family
Listing is presented by
Team Home-Pros
Sutton 1st West Realty